川口市青木二丁目 戸建 埼玉県川口市青木2丁目|3,799万円の中古一戸建て|センチュリー21ウインズホーム
| 価格 | 3,799万円 ![]() |
||||
|---|---|---|---|---|---|
| 所在地 | 埼玉県川口市青木2丁目
この地域周辺の物件を見る |
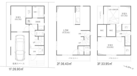
土地面積 | 61.01m² (18.46坪) | 建物面積 | 97.28u |
| 築年月 | 2017年11月築 | 間取り | 3LDK (-) | ||
| 交通 |
埼玉高速鉄道 川口元郷 徒歩18分
JR京浜東北・根岸線 川口 徒歩26分/青木三丁目 バス12分 停歩4分 埼玉高速鉄道 南鳩ヶ谷 徒歩17分 |
||||
| 特徴 |
|
|---|---|
| セールスコメント | - |
| 採光面 | - | 構造/階数 | 木造/地上3階建 |
|---|---|---|---|
| 建ぺい率 | 60(%) | 容積率 | 200(%) |
| 駐車場 | 有 | 現況/引渡し | 空家/即時 |
| 土地権利 | 所有権 | 私道負担面積 | - |
| 接道状況 | 接道: 東 公道 道路幅: 4m | 用途地域 |
準工業地域
|
| セットバック | - | 法令上の制限 | - |
| 地目 | 宅地 | 地勢 | |
| 建築確認番号 | 都市計画 | 市街化区域 | |
| 取引態様 | 仲介 | ||
| 情報更新日 | 2026年05月16日 | 次回更新日 | 2026年05月30日 |
| 小学校区 | 川口市立青木中央小学校 (埼玉県川口市) この学区の他の物件を見る |
中学校区 | 青木中学校 (埼玉県川口市) この学区の他の物件を見る |
|---|
| 価格 | 万円 | ||
|---|---|---|---|
| 年利率 | % |
||
| ボーナス払い | 返済年数 | ||
| 頭金 | 直接入力する | 万円 | |

毎月のご返済額 |
ボーナス(×年2回) |
物件価格3,799万円 |

平成29年築、リフォーム済住戸(アフターサービス保証付)目の前に桜並木が広がる住まい。LDK18帖超の3LDK!大型WIC2カ所!お部屋がスッキリ片付く小屋裏収納完備!バルコニー3面付きで風通し良好!