北区盆栽町535番 全3棟 C号棟 埼玉県さいたま市北区盆栽町|5,390万円の新築一戸建て|センチュリー21ウインズホーム
| 価格 | 5,390万円値下がり ![]() |
||||
|---|---|---|---|---|---|
| 所在地 | 埼玉県さいたま市北区盆栽町
この地域周辺の物件を見る |
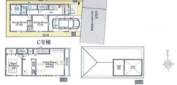
土地面積 | 75.42m² (22.81坪) | 建物面積 | 79.7u |
| 築年月 | 2026年1月築 | 間取り | 1SLDK (-) | ||
| 交通 |
JR東北本線 土呂 徒歩4分
東武野田線 大宮公園 徒歩13分 東武野田線 北大宮 徒歩23分 |
||||
| 特徴 |
|
|---|---|
| セールスコメント | - |
| 採光面 | - | 構造/階数 | 木造/地上3階建 |
|---|---|---|---|
| 建ぺい率 | 60(%) | 容積率 | 200(%) |
| 駐車場 | 有 | 現況/引渡し | 新築/相談 |
| 土地権利 | 所有権 | 私道負担面積 | - |
| 接道状況 | 接道: 東 私道 道路幅: 4m | 用途地域 |
第一種住居地域
|
| セットバック | - | 法令上の制限 | - |
| 地目 | 宅地 | 地勢 | |
| 建築確認番号 | 都市計画 | 市街化区域 | |
| 取引態様 | 仲介 | ||
| 情報更新日 | 2026年05月19日 | 次回更新日 | 2026年06月02日 |
| 小学校区 | さいたま市立植竹小学校 (埼玉県さいたま市北区) この学区の他の物件を見る |
中学校区 | 植竹中学校 (埼玉県さいたま市北区) この学区の他の物件を見る |
|---|
| 価格 | 万円 | ||
|---|---|---|---|
| 年利率 | % |
||
| ボーナス払い | 返済年数 | ||
| 頭金 | 直接入力する | 万円 | |

毎月のご返済額 |
ボーナス(×年2回) |
物件価格5,390万円 |
![]() |
![]() |
さいたま市北区盆栽町
4990万円〜5390万円 |

JR宇都宮線「土呂」駅徒歩4分の駅チカ物件!住宅性能評価W取得!実験で実証済みの耐震住宅!LDK16帖超!充実した収納スペース!小中学校、保育園、スーパー等徒歩圏内に揃う暮らしやすい住環境!