川口市差間 中古戸建 埼玉県川口市大字差間|3,199万円の中古一戸建て|センチュリー21ウインズホーム
| 価格 | 3,199万円値下がり ![]() |
||||
|---|---|---|---|---|---|
| 所在地 | 埼玉県川口市大字差間
この地域周辺の物件を見る |
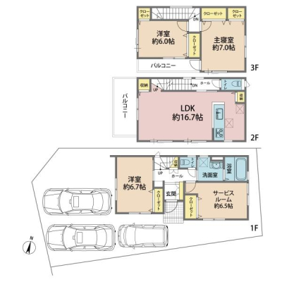
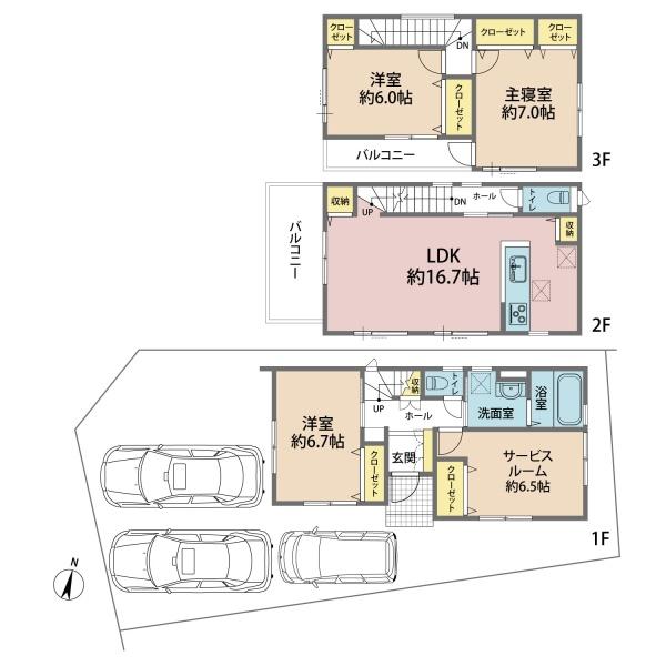
土地面積 | 118.52m² (35.85坪) | 建物面積 | 105.74u |
| 築年月 | 2017年7月築 | 間取り | 3SLDK (-) | ||
| 交通 |
JR武蔵野線 東浦和 徒歩30分/大塚 バス7分 停歩5分
JR武蔵野線 東川口 徒歩35分 埼玉高速鉄道 東川口 徒歩35分 |
||||
| 特徴 |
|
|---|---|
| セールスコメント | - |
| 採光面 | - | 構造/階数 | 木造/地上3階建 |
|---|---|---|---|
| 建ぺい率 | 60(%) | 容積率 | 200(%) |
| 駐車場 | 有 | 現況/引渡し | 空家/即時 |
| 土地権利 | 所有権 | 私道負担面積 | - |
| 接道状況 | 接道: 西 6m 公道 道路幅: 8m 接道: 北 13m 公道 道路幅: 22m |
用途地域 |
第一種低層住居専用地域
|
| セットバック | - | 法令上の制限 | - |
| 地目 | 宅地 | 地勢 | 平坦 |
| 建築確認番号 | 都市計画 | 市街化区域 | |
| 取引態様 | 一般媒介 | ||
| 情報更新日 | 2026年02月07日 | 次回更新日 | 2026年02月21日 |
| 小学校区 | 川口市立差間小学校 (埼玉県川口市) この学区の他の物件を見る |
中学校区 | 神根中学校 (埼玉県川口市) この学区の他の物件を見る |
|---|
| 価格 | 万円 | ||
|---|---|---|---|
| 年利率 | % |
||
| ボーナス払い | 返済年数 | ||
| 頭金 | 直接入力する | 万円 | |

毎月のご返済額 |
ボーナス(×年2回) |
物件価格3,199万円 |

駐車3台可能(車種による)が魅力の2017年築3階建て戸建。北西角地の開放感と16.7帖LDKの3LDKS。学校やスーパー、公園が徒歩圏内。令和8年1月現在、室内リフォーム実施中。