川口市前川V 全1棟 埼玉県川口市前川3丁目|5,580万円の新築一戸建て|センチュリー21ウインズホーム
| 価格 | 5,580万円 ![]() |
||||
|---|---|---|---|---|---|
| 所在地 | 埼玉県川口市前川3丁目
この地域周辺の物件を見る |
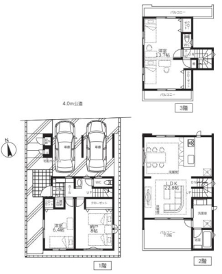
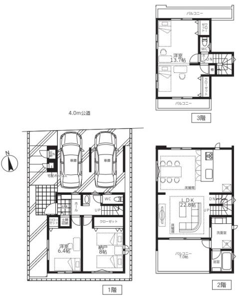
土地面積 | 101.73m² (30.77坪) | 建物面積 | 138.57u |
| 築年月 | 2026年2月築 | 間取り | 2SLDK (-) | ||
| 交通 |
JR京浜東北・根岸線 蕨 徒歩33分/前川1丁目 バス10分 停歩6分
埼玉高速鉄道 鳩ヶ谷 徒歩35分 JR京浜東北・根岸線 西川口 徒歩36分 |
||||
| 特徴 |
|
|---|---|
| セールスコメント | - |
| 採光面 | - | 構造/階数 | 木造/地上3階建 |
|---|---|---|---|
| 建ぺい率 | 60(%) | 容積率 | 200(%) |
| 駐車場 | 有 | 現況/引渡し | 建築中/相談 |
| 土地権利 | 所有権 | 私道負担面積 | - |
| 接道状況 | 接道: 北 公道 道路幅: 4m | 用途地域 |
第一種住居地域
|
| セットバック | - | 法令上の制限 | 22条区域 |
| 地目 | 宅地 | 地勢 | |
| 建築確認番号 | 第25UDI1T建02680号 | 都市計画 | - |
| 取引態様 | 仲介 | ||
| 情報更新日 | 2026年01月31日 | 次回更新日 | 2026年02月14日 |
| 小学校区 | 川口市立前川東小学校 (埼玉県川口市) この学区の他の物件を見る |
中学校区 | 岸川中学校 (埼玉県川口市) この学区の他の物件を見る |
|---|
| 価格 | 万円 | ||
|---|---|---|---|
| 年利率 | % |
||
| ボーナス払い | 返済年数 | ||
| 頭金 | 直接入力する | 万円 | |

毎月のご返済額 |
ボーナス(×年2回) |
物件価格5,580万円 |
![]() |
![]() |
川口市前川3丁目
5580万円 |

閑静な住宅街に佇む3階建て!小学校まで徒歩3分!買い物施設が多数点在!LDK22.8帖!広々とした7帖大のバルコニーテラスは家族の憩いの空間に!ガス床暖房2面!玄関には土間収納完備!駐車2台有り!