当社専任 川口市伊刈 埼玉県川口市大字伊刈|4,080万円の新築一戸建て|センチュリー21ウインズホーム
| 価格 | 4,080万円値下がり ![]() |
||||
|---|---|---|---|---|---|
| 所在地 | 埼玉県川口市大字伊刈
この地域周辺の物件を見る |
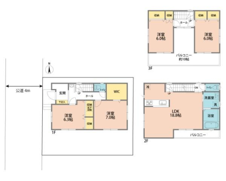
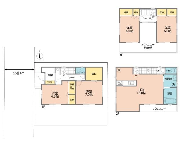
土地面積 | 82.79m² (25.04坪) | 建物面積 | 113.12u |
| 築年月 | 2026年2月築 | 間取り | 4LDK (-) | ||
| 交通 |
JR京浜東北・根岸線 蕨 徒歩31分
JR武蔵野線 南浦和 徒歩36分/西伊刈 バス13分 停歩8分 JR武蔵野線 東浦和 徒歩38分 |
||||
| 特徴 |
|
|---|---|
| セールスコメント | - |
| 採光面 | - | 構造/階数 | 木造/地上3階建 |
|---|---|---|---|
| 建ぺい率 | 60(%) | 容積率 | 160(%) |
| 駐車場 | 有 | 現況/引渡し | 新築/即時 |
| 土地権利 | 所有権 | 私道負担面積 | - |
| 接道状況 | 接道: 西 公道 道路幅: 4m | 用途地域 |
第二種中高層住居専用地域
|
| セットバック | - | 法令上の制限 | 景観法 法22条区域 付保留地有り(217-2街区6-1画地) |
| 地目 | 宅地 | 地勢 | |
| 建築確認番号 | 都市計画 | 市街化区域 | |
| 取引態様 | 専任媒介 | ||
| 情報更新日 | 2026年05月14日 | 次回更新日 | 2026年05月28日 |
| 小学校区 | 川口市立芝中央小学校 (埼玉県川口市) この学区の他の物件を見る |
中学校区 | 芝東中学校 (埼玉県川口市) この学区の他の物件を見る |
|---|
| 価格 | 万円 | ||
|---|---|---|---|
| 年利率 | % |
||
| ボーナス払い | 返済年数 | ||
| 頭金 | 直接入力する | 万円 | |

毎月のご返済額 |
ボーナス(×年2回) |
物件価格4,080万円 |

区画整理地内で整った街並み!洗面台2箇所、食洗機、ガス温水床暖房、3階バルコニーには水栓付き!ツーバイフォー工法で地震・火事に強い建物!カースペース2台(車種による)収納豊富、全居室6帖以上!