板橋区清水町 東京都板橋区清水町|5,480万円の中古一戸建て|センチュリー21ウインズホーム
| 価格 | 5,480万円 ![]() |
||||
|---|---|---|---|---|---|
| 所在地 | 東京都板橋区清水町
この地域周辺の物件を見る |
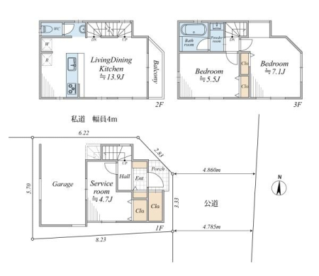
土地面積 | 43.39m² (13.13坪) | 建物面積 | 72.3u |
| 築年月 | 2012年2月築 | 間取り | 2SLDK (-) | ||
| 交通 |
都営三田線 板橋本町 徒歩9分
都営三田線 本蓮沼 徒歩9分 JR埼京線 十条 徒歩26分 |
||||
| 特徴 |
|
|---|---|
| セールスコメント | - |
| 採光面 | - | 構造/階数 | 木造/地上3階建 |
|---|---|---|---|
| 建ぺい率 | 90(%) | 容積率 | 300(%) |
| 駐車場 | 有 | 現況/引渡し | 居住中/相談 |
| 土地権利 | 所有権 | 私道負担面積 | - |
| 接道状況 | 接道: 東 公道 道路幅: 4.7m 接道: 北 私道 道路幅: 4m |
用途地域 |
近隣商業地域
|
| セットバック | - | 法令上の制限 | - |
| 地目 | 宅地 | 地勢 | |
| 建築確認番号 | 都市計画 | 市街化区域 | |
| 取引態様 | 専任媒介 | ||
| 情報更新日 | 2025年11月03日 | 次回更新日 | 2025年11月17日 |
| 小学校区 | 板橋区立志村第三小学校 (東京都板橋区) この学区の他の物件を見る |
中学校区 | 志村第一中学校 (東京都板橋区) この学区の他の物件を見る |
|---|
| 価格 | 万円 | ||
|---|---|---|---|
| 年利率 | % |
||
| ボーナス払い | 返済年数 | ||
| 頭金 | 直接入力する | 万円 | |

毎月のご返済額 |
ボーナス(×年2回) |
物件価格5,480万円 |

不動産価値の高い『角地』につき開放的で通風良好!外部収納&土間収納付き!間口が広いため駐車もラクラク!板橋本町駅×本蓮沼駅徒歩9分の好立地で、生活施設が徒歩圏内に揃う利便性の高い住環境です!