川口市源左衛門新田中古戸建 埼玉県川口市大字源左衛門新田|2,380万円の中古一戸建て|センチュリー21ウインズホーム
| 価格 | 2,380万円 ![]() |
||||
|---|---|---|---|---|---|
| 所在地 | 埼玉県川口市大字源左衛門新田
この地域周辺の物件を見る |
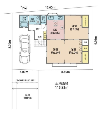
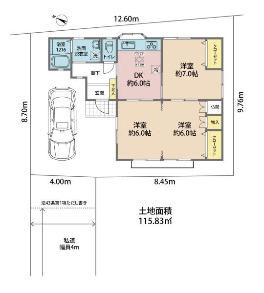
土地面積 | 115.83m² (35.04坪) | 建物面積 | 57.55u |
| 築年月 | 2017年9月築 | 間取り | 3DK (-) | ||
| 交通 |
JR武蔵野線 東浦和 徒歩33分
JR武蔵野線 東川口 徒歩33分/源左衛門新田 バス15分 停歩2分 埼玉高速鉄道 東川口 徒歩33分/源左衛門新田 バス15分 停歩2分 |
||||
| 特徴 |
|
|---|---|
| セールスコメント | - |
| 採光面 | - | 構造/階数 | 木造/地上1階建 |
|---|---|---|---|
| 建ぺい率 | 50(%) | 容積率 | 100(%) |
| 駐車場 | 有 | 現況/引渡し | 空家/相談 |
| 土地権利 | 所有権 | 私道負担面積 | - |
| 接道状況 | 接道: 南 私道 道路幅: 4m | 用途地域 |
第一種低層住居専用地域
|
| セットバック | - | 法令上の制限 | 景観法 |
| 地目 | 宅地 | 地勢 | |
| 建築確認番号 | 都市計画 | 市街化区域 | |
| 取引態様 | 売主 | ||
| 情報更新日 | 2026年03月15日 | 次回更新日 | 2026年03月29日 |
| 小学校区 | 川口市立差間小学校 (埼玉県川口市) この学区の他の物件を見る |
中学校区 | 神根中学校 (埼玉県川口市) この学区の他の物件を見る |
|---|
| 価格 | 万円 | ||
|---|---|---|---|
| 年利率 | % |
||
| ボーナス払い | 返済年数 | ||
| 頭金 | 直接入力する | 万円 | |

毎月のご返済額 |
ボーナス(×年2回) |
物件価格2,380万円 |

◆築浅平屋住宅!全室段差なしのフラット設計
◆一部バリアフリー仕様で安心・安全を考えた住環境です