浦和区本太IV 全4棟 B号棟 埼玉県さいたま市浦和区本太4丁目|8,380万円の新築一戸建て|センチュリー21ウインズホーム
| 価格 | 8,380万円 ![]() |
||||
|---|---|---|---|---|---|
| 所在地 | 埼玉県さいたま市浦和区本太4丁目
この地域周辺の物件を見る |
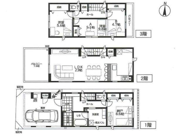
土地面積 | 71.99m² (21.78坪) | 建物面積 | 132.91u |
| 築年月 | 2025年11月築 | 間取り | 2SLDK (-) | ||
| 交通 |
JR京浜東北・根岸線 浦和 徒歩13分
JR京浜東北・根岸線 北浦和 徒歩18分 |
||||
| 特徴 |
|
|---|---|
| セールスコメント | - |
| 採光面 | - | 構造/階数 | 木造/地上3階建 |
|---|---|---|---|
| 建ぺい率 | 60(%) | 容積率 | 200(%) |
| 駐車場 | 有 | 現況/引渡し | 新築/相談 |
| 土地権利 | 所有権 | 私道負担面積 | - |
| 接道状況 | 接道: 西 公道 道路幅: 4m | 用途地域 |
第一種住居地域
|
| セットバック | - | 法令上の制限 | - |
| 地目 | 宅地 | 地勢 | |
| 建築確認番号 | 都市計画 | 市街化区域 | |
| 取引態様 | 仲介 | ||
| 情報更新日 | 2026年01月13日 | 次回更新日 | 2026年01月27日 |
| 小学校区 | さいたま市立本太小学校 (埼玉県さいたま市浦和区) この学区の他の物件を見る |
中学校区 | 本太中学校 (埼玉県さいたま市浦和区) この学区の他の物件を見る |
|---|
| 価格 | 万円 | ||
|---|---|---|---|
| 年利率 | % |
||
| ボーナス払い | 返済年数 | ||
| 頭金 | 直接入力する | 万円 | |

毎月のご返済額 |
ボーナス(×年2回) |
物件価格8,380万円 |

新築戸建残り1棟!JR「浦和」駅徒歩13分!LDK広々23帖!リビングからつながるバルコニーテラス!あると嬉しい宅配ボックス、便利な外部収納完備。床暖房、食洗機、ガス衣類乾燥機など充実の設備仕様!