板橋区成増400 東京都板橋区成増4丁目|7,580万円の新築一戸建て|センチュリー21ウインズホーム
| 価格 | 7,580万円値下がり ![]() |
||||
|---|---|---|---|---|---|
| 所在地 | 東京都板橋区成増4丁目
この地域周辺の物件を見る |
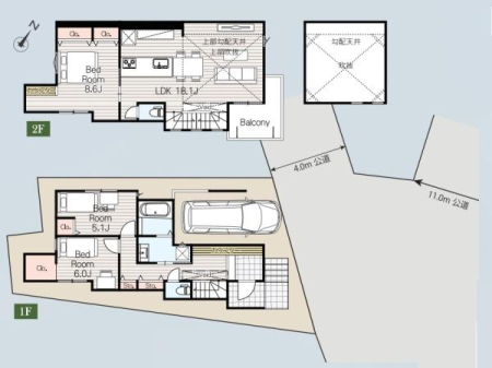
土地面積 | 91.63m² (27.72坪) | 建物面積 | 105.99u |
| 築年月 | 2026年1月築 | 間取り | 3LDK (-) | ||
| 交通 |
東武東上線 成増 徒歩12分
東京メトロ有楽町線 地下鉄成増 徒歩18分 都営三田線 西高島平 徒歩19分 |
||||
| 特徴 |
|
|---|---|
| セールスコメント | - |
| 採光面 | - | 構造/階数 | 木造/地上2階建 |
|---|---|---|---|
| 建ぺい率 | 80(%) | 容積率 | 200(%) |
| 駐車場 | 有 | 現況/引渡し | 建築中/相談 |
| 土地権利 | 所有権 | 私道負担面積 | - |
| 接道状況 | 接道: 北東 公道 道路幅: 4m | 用途地域 |
近隣商業地域
|
| セットバック | - | 法令上の制限 | 準防火地域 |
| 地目 | 宅地 | 地勢 | |
| 建築確認番号 | 第BNV確済25-541号 | 都市計画 | 市街化区域 |
| 取引態様 | 仲介 | ||
| 情報更新日 | 2026年01月10日 | 次回更新日 | 2026年01月24日 |
| 小学校区 | 板橋区立成増小学校 (東京都板橋区) この学区の他の物件を見る |
中学校区 | 赤塚第二中学校 (東京都板橋区) この学区の他の物件を見る |
|---|
| 価格 | 万円 | ||
|---|---|---|---|
| 年利率 | % |
||
| ボーナス払い | 返済年数 | ||
| 頭金 | 直接入力する | 万円 | |

毎月のご返済額 |
ボーナス(×年2回) |
物件価格7,580万円 |

洗練されたおしゃれな外観!LDK18帖超!上部勾配天井、吹き抜けのある広々リビング!適材適所の収納完備!便利なマルチカウンター完備!東武東上線「成増」駅徒歩12分!生活利便施設が徒歩圏内の便利な立地!